装修日记—装修小白新手上路
2018-12-25 来源:装修伙伴网 阅读(4622)
免费量房、验房、预算报价、户型设计大礼包 ! 免费装修保障服务礼包
装修这件事吧,过程复杂的可怕,工期长的可怕,钱花的可怕,心遭的凶的可怕。心疼大家,同一个事儿变着法儿的提问题,装修面前人人平等,都是小白鼠,16年开始装修人生第一套房。
浏览了全网到处弥漫着装修神坑,装错毁一生,装修离婚,装修跑断腿,装修公司跑路,等等让人惶恐不安的装修负面消息,为了知己知彼,在拿到房的时候我毅然决然的选择了半包。老祖宗说过,事情“预则立,不预则废”,意思就是做事情只有做好计划,依据流程才能成功。装修也一样,为了避免过程中手忙脚乱所以在即将装修前我做了大量的工作。
几个切身体会和大家分享一下,装修前一定要确认好的几点。
1.自己的预算和装修需求,简装还是适中,还是豪装?
2.确定家里的基本布局,结构是否要变化?最好提前确定大部分家具尺寸。
3.依据家具布局明确水电点位。不同房间大概都包括那些点位?
4.基本的材料要挑选的差不多,比如瓷砖,地板,橱柜,门窗等。
言归正传
一、前期准备
首先确定家装风格、与我一个表妹(设计师)沟通出图就成了当务之急。
1、确定装修风格
装修前首先要确定喜欢的风格,爱蓝鲸家装家居平台上就有很多很好看的风格可以参考。
我喜欢原木系,所以全屋实木,坚决不用颗粒板,墙面用硅藻泥,尽量避免现场用油漆。
2、出图
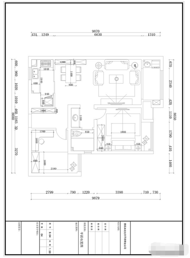
10月1日房子交付,9月我的大云兄就来到了南京准备量房(没办法还是预算有限,想着一交付马上就动工,房贷和房租的双重压力实在受不了……)。我们趁着门卫大爷打盹时候溜进了工地…… ,于是有了如下平面图:

3、确定改拆位置
基本没在原户型上做太大的变动:
1)拓宽了厨房门
2)缩小了卫生间干区的空间
3)拆除主卧飘窗做了柜子
二、开始施工
由于我在毕业后买了很多小家电,原户型的厨房面积又很小,而敞开式厨房的方案又不适合平时做中餐的爸妈(对的……过年我爸妈过来一趟感觉厨房墙面从来没有这么脏过……),所以最终选择了餐边柜的方案。
次卧考虑到办公的需求做了榻榻米储物和书桌。
客厅不要背景墙。
全屋尽量不用白色。
厨房橱柜增加高度。
由于没有预算做中央空调和地暖,最终选择柜机 挂机的冷暖方案。
明确了这些之后,我就开始在小区晃悠找工人,拒绝一切亲朋好友的推荐,基本做到了六亲不认,列好时间表和预算表以后,就开始施工啦~
1、水电改造
原谅看到全是粉尘的砸墙和水电改造实在懒得拍照,就算拍了貌似也删光了。有这么几点经验可以分享给大家:
1)水路改造要充分考虑到地漏、取水点、冷热等问题
千万不要听信工人说的这边不会用到地漏的,洗拖把用不到热水的之类的鬼话,那都是他们偷工减料的借口罢了。

我家卫生间的干区,当时工人告诉我说干区没必要装地漏
我家卫生间的干区,当时工人告诉我说干区没必要装地漏,后来发现拿着花洒冲地简直不要太方便
2)电路改造的电线看情况再更换
我记得当时装修的时候工人一个劲的告诉我开发商的电线不好,我信了他的邪把电线全换了,结果有一天去工地看,发现开发商的线是江南的阻燃电线,也是大牌,闹了半天我买的远东阻燃电线其实是一个等级的东西,换的电线工人收拾收拾也不知道怎么处理了
3)插座真的不嫌多,可以考虑五孔插座全部换成一开五孔
插座放在什么位置,其实并不是完全固定的标准,有的人喜欢听音乐,打算后期客厅组5.1,那么一开始就要考虑沙发旁边的插座和布线;有的人喜欢在客厅用电脑办公,那么茶几底下放一个地插可能会更适合;有的人客厅娱乐一应俱全,那么预留足够的墙插就显得很有必要。而反复的插拔插头也是一件很不方便的事情,有个开关来控制会让你待机状态的家电直接关闭,从而更加节能。
4)预埋线管可以让走线变得更加整洁
客厅到了后期可能会涉及许多的家电,如果电视柜不能很好的隐藏插座,那么会让走线变的非常杂乱,预留一个六分的线管,让各种线都从墙内通到插座,会让你的客厅、卧室看上去更加整洁。

5)充分考虑预留洗碗机位置的水电
这是家里最大的遗憾了,当时总觉得自己在家做饭的机会不会太多,加上厨房又小,觉得洗碗机会占用太多厨房空间,现在发现吃完饭可以不用考虑洗碗的问题舒舒服服窝在沙发上看电视简直不要太幸福……可惜现在要加装的话拆橱柜成本实在太高,希望大家在装修的前期就能考虑到哈。
6)前置净水器最好装在水表箱
前置净水器这玩意儿虽然不大,但是装在橱柜内由于弯弯曲曲的管道会占用大量的空间,所以如果水表箱空间足够,水电改造的前期就直接搞定吧。
7)弱电箱移位及更换
又是迫于预算所限 ,沿用了开发商的铁盒弱电箱……后来的结果就是路由器放在弱电箱信号直接被屏蔽了,于是路由器不得不放在电视柜上,而且由于没有下移,导致电视柜不能挡住……确实逼死了我这个强迫症。

关于水电改造暂时就想到这么多,后期有发现的问题我再补充哈~
2、防水及瓷砖铺贴
1)防水施工
防水我用的是德高的防水套餐,价格虽然稍贵,但是刷完厚厚的涂层还是很让人放心的。个人建议有取水点的地方都刷到取水点以上,卫生间至少刷到1.8m以上,我家卫生间干湿区一共8㎡,这个套餐足够用了,双十一购入,当地专卖店送货上门,当天下单第二天下午送到,时效很不错~
2)瓷砖铺贴
关于瓷砖的选购,我看到网上已经有很多牛人介绍过了,太专业的我也不懂,逛过几次家装市场后,发现对于釉面砖实在欣赏不来,个人更偏向仿古砖更加温和的颜色和反光。一线品牌个人觉得价格有点虚高,动不动一片600*600的全瓷仿古砖价格都在三位数,实在让人望而却步(还是因为穷……)。最后我选择了二线品牌,质量上我确实没看出什么差别,希望大神能够指教一二。600*600全瓷仿古砖,30一片购入,地砖一切二上墙,效果还不错~

这里值得一提的是,在实体店买瓷砖是可以让店家送杂砖的,这些杂砖往往因为款式过时等原因被处理,但实际质量却不差,把它铺在看不见的地方可以大大减少装修成本。我当时让店家送了我整整60片300*300的杂砖,运来的时候瓦工师傅都惊呆了,打电话和我确认这些“杂砖”要铺在什么地方,因为颜色一致的全瓷砖这样大规模的赠送还是不多见的,所以大家买瓷砖的时候留点心哈~
全瓷砖因为重量重难加工等原因,用黄沙水泥做地砖上墙是非常不牢固的,所以得用瓷砖胶铺贴。出于对德高旗舰店不错的印象,我在双十一又买了他家的瓷砖胶,事实证明粘合度还是很不错的。请注意,瓷砖胶千万不要掺水泥!直接用水调配使用即可。
3)填缝or美缝
出于节约预算的考虑(这句话大家应该看到好几遍了……),我最终选择了填缝,依然双十一囤货购入德高的填缝剂,入住半年后出现了脱落现象,不推荐,不上链接了。
看过邻居家的美缝确实比填缝来的结实,看来不该节约预算的地方还是要舍得花钱
3、木工
瓷砖贴完后,经过铲墙面、地面找平后就是非常关键的木工环节。这个环节可能是需要沟通最多的环节了,因为不同的柜子结合使用习惯需要做成不同的高度,而衣柜的设计直接关系到后期用起来放不方便。板材我用到是兔宝宝的E0白樱桃免漆板,本地实体店购入,255一张。

入户玄关,下方四门鞋柜,上方储物柜

主卧衣柜

主卧衣柜

餐边柜

次卧书桌,桌面木贴皮

次卧榻榻米,一半掀盖一半抽屉

次卧衣柜,很失败,这种设计功能性几乎为0

阳台松木吊顶
木工人工费5000,买板材和辅料一共10000不到,一共1w5不到搞定了全部柜体,我问过各种XX定制,可能这个价格只能搞定一个房间吧,还是颗粒刨花板。
4、墙面粉刷
抱着试试看的心情,选择了前几年大热的硅藻泥,本地的报价也确实让我大吃一惊,动不动三位数的报价让我一度想放弃这种方案。后来在万能淘宝搜到了一家硅藻泥专卖店,发来小样试用后很惊喜,于是双十一双十二果断下单。硅藻泥的好处和坏处都显而易见,好处是确实刷完没有油漆那种难闻的味道,后来测甲醛也确实达标;坏处就是和腻子粉一样,指甲一掐就一个印记,维护起来要十分小心。打底的腻子依然用了德高,后来才知道本地的腻子7块一包,德高足足贵了10倍!但愿路遥知马力吧!
5、房门、柜门、橱柜、集成吊顶
这些物件由于定制的特殊性,在淘宝购买可能就不太合适了,实体店选购的时候我有一个小心思,就是会查看店家的图册,很多实体店其实只是加盟代理的形式,并没有工厂,而出于省事儿的考虑,他们往往会直接使用工厂的图册,这个时候图册的底页往往会有工厂的联系方式,打电话过去会有意想不到的惊喜哦

实木复合门,价格比实体店便宜了30%

实木复合柜体 亚克力面板,方便打理

厨房集成吊顶加凉霸,其实就是个小电扇

柜门全部橡木指接板,我是多爱实木
6、水电及灯具安装
到了这一步,基本上装修就到了收尾阶段啦~这一步需要注意的是根据你选择的家电来定制相应的柜子的尺寸,比如阳台洗衣柜。如果要囤家电的话,首推京东。因为我在京东上最长的囤货时间长达半年之久,而且中间多次降价,我都通过取消订单再重新下单的方式保证了非常实惠的价格,给强东爸爸点赞!
至于灯具和开关,淘宝简直一搜一大把,你想要什么风格的都有……我选择了全系实木无极调光的灯具,买三送一最后2500块全部搞定而且包安装。还有见到各种仿大设计师的灯,价格也是无比美好。筒灯和灯带全部购自欧普旗舰店,双十二也是好价。最值得一提的是网上经常推的5块10块包邮的阳台吸顶灯,我撸了两个,到现在一点毛病也没有……

5块包邮的8w阳台灯,这你能信?!
7、木地板铺装
选木地板的时候我确实纠结过很长时间,当时很喜欢竹地板,最后在南京为数不多的几家竹地板店老板居然劝我选择复合木地板,理由是竹地板在干燥的天气容易开裂,虽然心心念念竹地板的质感,无奈也最终作罢。最后趁着本地团购会搞活动,入了一款莱茵阳光的特价复合地板。入住后发现还是复合地板方便,基本湿漉漉的拖把随便拖也没啥大事儿,家具搬来搬去也没见什么磕碰,对我这种懒人来说,或许还是复合地板这种廉价好打理的适合我吧。
8、家具和家电进场
家具和家电全部购自天猫、京东双十一双十二618等特价活动,我的心得体会是一次多办几件事情,就我的经验来说,大的电商平台发货时效还是有保障的,提前几天约好发货时间,尽量跑一趟新家能够把几件事情集中在一起做,这样效率会高很多。我家当时就是空调安装、电视安装、送家具三拨人在同一天把事情全部搞定,那种忙一天看到家的雏形开始出现的样子是很有成就感的啦~
关于预算的控制和总结
我的体会是养成记账的习惯,这样可以让你体会到生活的艰辛 。每当看到信用卡账单五位数的时候你会更加激起工作的斗志 ,我装修的时候大学毕业两年多一点,一个人靠着坐地铁挤公交跑遍了南京各个建材市场。装修吃紧的时候手上的现金只有几百块钱,靠着京东白条和花呗信用卡推进着整个进程,最后按照预想的日期搬家入住。
可能大家不像我我这么窘迫,但是善用京东白条和花呗的分期免息确实能让大家的装修从容不少~
每次逛建材城的时候,我也会有很多心动的东西,对一些顶级的家装品牌也会十分向往,但我往往这个时候想的是这么一个问题,为提升10%的体验付出几倍的价格对于先阶段的我是否值得?其实“值”这个词在每个人心中,有不同的答案,有的人觉得在能力范围内获得最好的体验就是“值”;有的人觉得秒到白菜价的东西就是“值”;有的人觉得自己动手做出不逊色大师的物件就是“值”……
文章转载自官方媒体或其他网站,版权归原创者所有。本站转载旨在使信息更广泛地传播以更好地发挥其价值, 如涉及版权等问题,请作者与本网站联系,本网站核实确认后会尽快予以处理。
标题: 装修日记—装修小白新手上路 地址:http://www.zxhb.com/xuetang/865881












